Arquitectura en Roca: versión moderna y funcional de una casa en zona de chacras
El proyecto y la dirección técnica de la obra estuvo a cargo de la arquitecta Natalia Leves.
Esta vivienda unifamiliar construida en un barrio periférico en la zona de chacras de Roca responde a un proyecto y dirección técnica de la arquitecta Natalia Leves.
La casa está pensada como un recinto que se abre hacia su interior, introduciendo la naturaleza al interior de la vivienda.
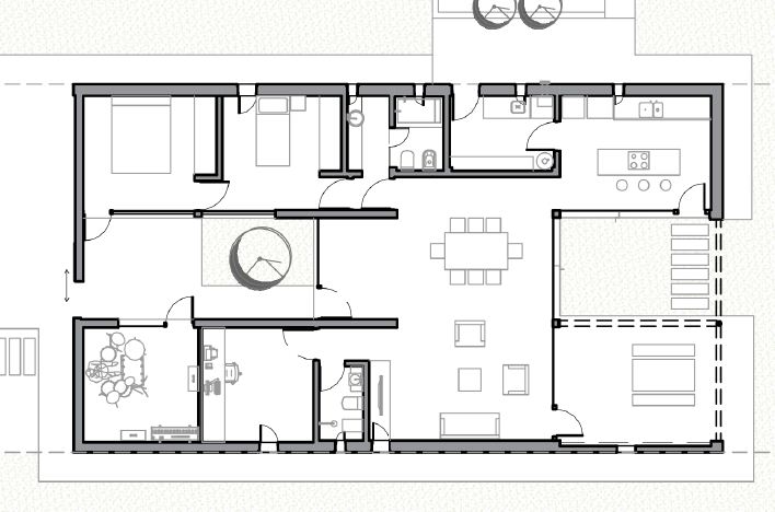
El terreno tiene 15 metros de ancho por 48 metros de largo. Se tomó el norte como orientación predominante, favorable para el invierno y regulable en verano.

Vista de la cocina desde el patio trasero, proyecto y construcción de la arquitecta Natalia Leves
Articulada a partir de dos situaciones de patios internos, uno de ingreso y otro semicubierto o preámbulo al patio posterior, funcionan como fuelles entre adentro – afuera y como vinculador del interior con el exterior y viceversa. Estos patios o fuelles actúan como reguladores de temperatura. A través de elementos como pérgolas, cobertizos y vegetación se amortiza la temperatura del exterior, respecto del interior de la vivienda. No se utiliza aire acondicionado en verano.
La búsqueda espacial remite a los conceptos que el arquitecto Mies Van Der Rohe utilizaba en sus obras: estar adentro y fuera al mismo tiempo, potenciando ambas situaciones en simultáneo, la continuidad espacial.

En el interior las alturas se presentan diferenciando los espacios intermedios o de paso con una altura baja, altura de dintel, de los espacios de permanencia donde la altura toma mayor jerarquía, enfatizando y ampliando las proporciones del espacio. Esto permite generar diferentes sensaciones al habitarla.
Se dividió el ancho del terreno construible en tres tercios organizando la planta y las alturas. La ubicación de la cumbrera, la separación de áreas privadas de las públicas y los patios se circunscriben en estos módulos.

La casa tiene dos patios internos que vinculan el exterior con el interior de la vivienda y actúan como reguladores de la temperatura.
Una cascara de ladrillo visto recubre el exterior reforzando el concepto de reciento, contraponiéndose con el interior liso y blanco. Esta cáscara está construida con doble muro de ladrillo hueco + ladrillón de la zona, con cámara de aire, lo que permite una mejor aislación.
Sobre esta cáscara solo funcionan las ventanas que permiten ventilar los ambientes, las mínimas indispensables, siendo los grandes paños de vidrio los que iluminan. Estos últimos son los que se abren hacia los patios internos, otorgándole también privacidad a la vivienda.
Su programa resuelve un estar comedor, una cocina, lavadero, 4 habitaciones flexibles con la posibilidad de unificación, un toilette y baño principal, sumando un total de 128 mts.
Fotos: Germán Curihuinca
IG @natyleves


Vista de uno de los patios internos de la casa. Gracias a estos espacios verdes y la circulación de aire pensada desde el primer momento del proyecto en esta casa no se usa aire acondicionado en el verano.


La cocina es funcional al extremo, con luz natural durante todo el día.

Esta vivienda unifamiliar construida en un barrio periférico en la zona de chacras de Roca responde a un proyecto y dirección técnica de la arquitecta Natalia Leves.
Registrate gratis
Disfrutá de nuestros contenidos y entretenimiento
Suscribite desde $1500 ¿Ya estás suscripto? Ingresá ahora
Comentarios
Estimados/as lectores de Río Negro estamos trabajando en un módulo de comentarios propio. En breve estará habilitada la opción de comentar en notas nuevamente. Mientras tanto, te dejamos espacio para que puedas hacernos llegar tu comentario.
Gracias y disculpas por las molestias.
Comentar