Cómo comprar una casa en ocho años, en Cipolletti
El barrio Casas de la Falda en Cipolletti transita sus últimos meses antes de que los primeros propietarios puedan disfrutar de su vivienda propia, la que pueden cancelar totalmente en cuotas a lo largo de 8 años de plazo de financiación disponible.
Un aspecto interesante para destacar en este sentido es que la cuota que deberá pagar el comprador es totalmente accesible y similar a lo que actualmente abona por un alquiler.
De esta manera, Casas de la Falda se transforma en un producto único en el mercado desde la caída de los créditos hipotecarios, ya que no hay ninguna propiedad que se pueda comprar con posesión casi inmediata y con financiación a 8 años en la actualidad.
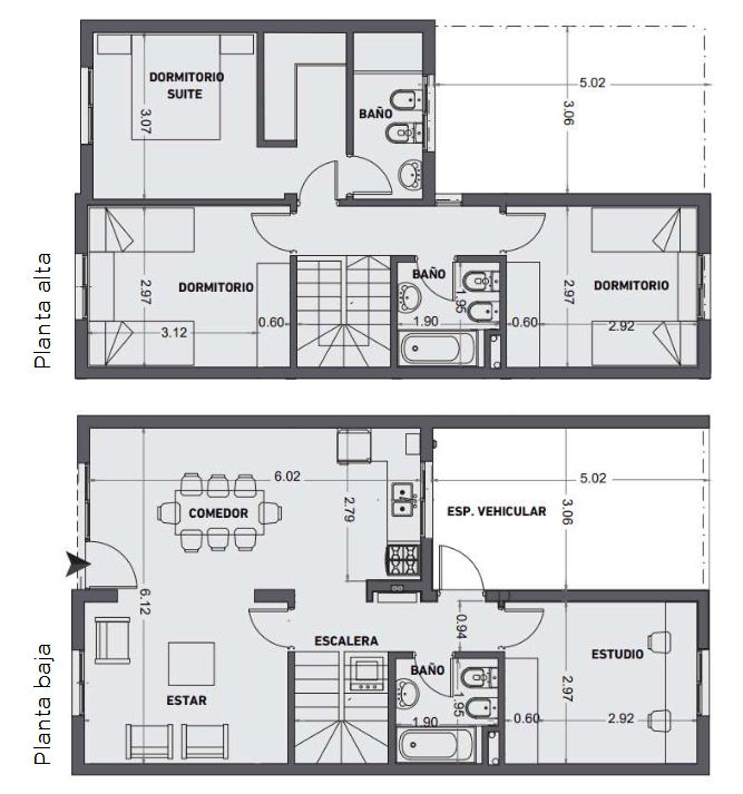
Esta primera etapa del barrio, con entrega programada para diciembre próximo, comprende 56 unidades habitacionales de 58m2 en planta baja y 15 m2 de estacionamiento, de las cuales ya hay varias que han sido comercializadas.
El emprendimiento forma parte del eje de expansión urbana de Cipolletti y está a pocos minutos del centro de la ciudad, sin perder de vista un rico entorno natural y contar con una ubicación privilegiada en una zona segura para sus futuros habitantes.

Las unidades cuentan con living comedor integrado, dos dormitorios, baño y lavadero, y tienen la posibilidad de ser ampliadas con una planta alta que lleva el volumen habitable a 116 m2 cubiertos, ya con 3 dormitorios, 3 baños, un amplio living comedor y estudio. Esta ampliación debe realizarse respetando el manual del usuario para que el diseño de la planta baja pueda soportar las cargas de manera eficiente. Por caso, debe realizarse con el sistema constructivo seco, y con perfilería de madera o aluminio.
Cabe destacar que el barrio Casas de la Falda cuenta con todos los servicios esenciales de agua, gas, luz y cloacas.


Las unidades se entregan con aberturas de PVC, pisos cerámicos, amoblamientos y carpintería, con instalaciones de calefacción tradicional, e incluyen cocina y calefón.
Para la comercialización de las viviendas hay varias propuestas a las que se puede acceder, además del pago contado que cuenta con el beneficio de un 3% de descuento.
La financiación de estas viviendas puede realizarse a través de un anticipo que ronda el 40% el valor de la propiedad y está la posibilidad de hacer un plan de pagos de hasta 96 meses cuyas cuotas se irán ajustando por el índice de la Cámara Argentina de la Construcción.

Para acceder a la financiación la relación cuota/ingreso del comprador tiene que ser de 30% o menos.
En tanto que la escrituración de la vivienda tiene un plazo de 6 meses posteriores a la entrega de posesión.
Más info en http://bit.ly/CasasdelaFalda 👈
El barrio Casas de la Falda en Cipolletti transita sus últimos meses antes de que los primeros propietarios puedan disfrutar de su vivienda propia, la que pueden cancelar totalmente en cuotas a lo largo de 8 años de plazo de financiación disponible.
Registrate gratis
Disfrutá de nuestros contenidos y entretenimiento
Suscribite por $1500 ¿Ya estás suscripto? Ingresá ahora