Mirá esta vivienda cipoleña pensada para disfrutar del patio central
Bautizada como Casa Patios por el estudio que la diseñó, la construcción está organizada alrededor de un espacio verde central y privado. El hormigón visto, por otra parte, unifica en simultáneo lo estructural con la estética y la función.
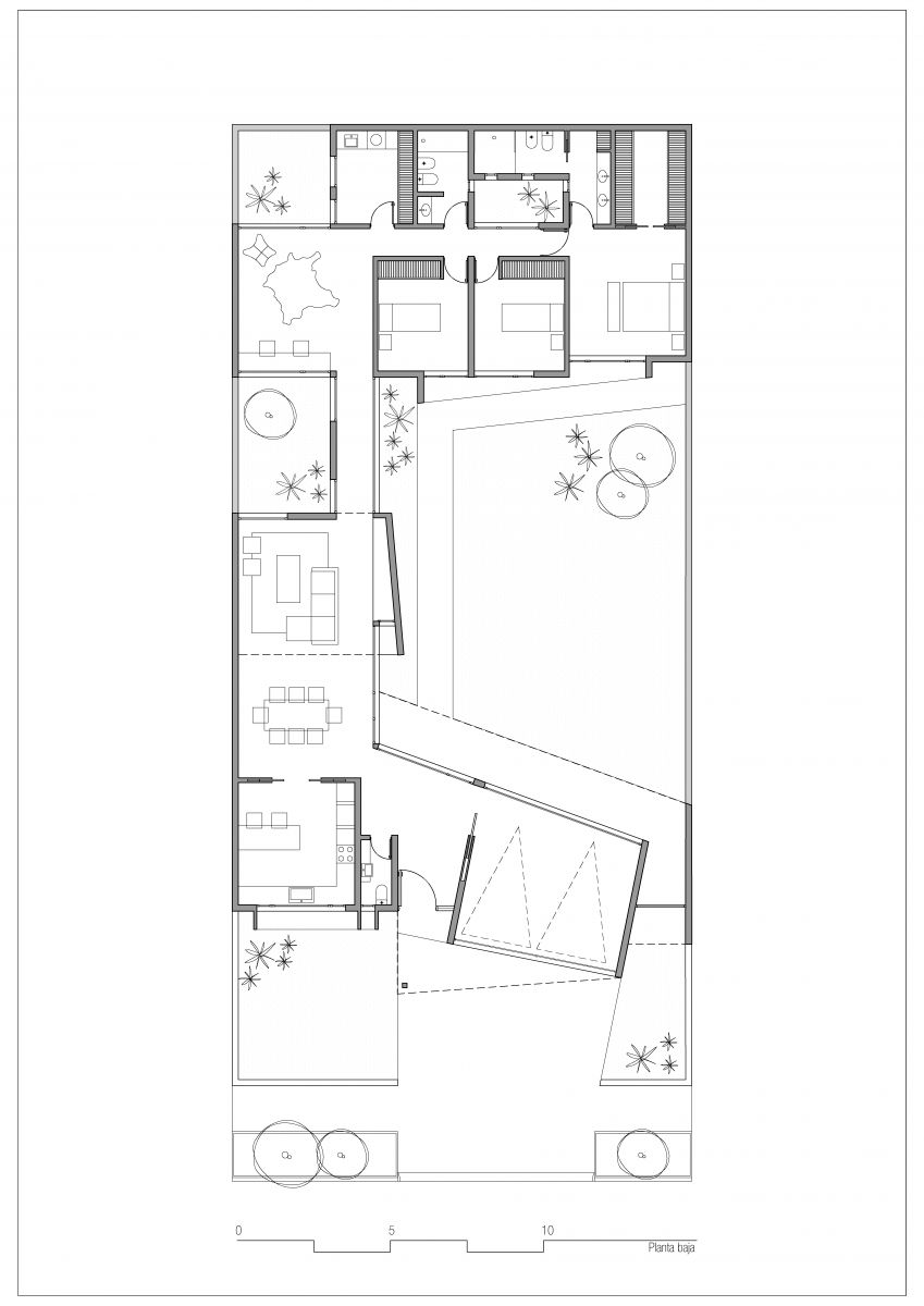
Ambientes conectados, luminosidad y vistas al exterior desde todos los espacios fueron las premisas que guiaron a la arquitecta Agustina Niembro Buffolo, del estudio Abitacolo, en el proyecto de esta vivienda ubicada entre medianeras, en un barrio de la ciudad de Cipolletti.
La casa, de 220 m² cubiertos, se proyectó en forma de “C” en una sola planta donde todos sus ambientes conectan con el exterior y considerando la mejor orientación para el asoleamiento según cada función.
Así se origina esta planta, donde los espacios interiores “abrazan” un patio central de mayor magnitud y pequeños patios internos, que aportan luz natural a los locales de servicio y al estudio.
Una idea de patio como espacio abierto precisamente para la convivencia, el encuentro y el ocio.

Al ingresar a la vivienda nos encontramos con un espacio de recepción con amplios ventanales hacia el patio central, que no es sino un espacio de transición y encuentro entre la arquitectura y la naturaleza. Al entrar allí se nos abre el patio al cielo.
Despojada, con diseño moderno y circulación que fluye naturalmente, esta vivienda dialoga sin interrupciones con la galería y el jardín. Galería que genera una continuidad espacial que potencia el contacto con la naturaleza y completa el diseño planteado.

Construcción urbana
- 220 m2
- es la superficie cubierta total de la vivienda.
- 520 m2
- son las dimensiones del terreno, ubicado entre medianeras en un barrio cipoleño.
El programa se divide con los ambientes públicos hacia el frente, y el sector privado hacia el fondo, aportando mayor intimidad a la zona de dormitorios, que a su vez reciben la luz del amanecer, mientras que el área pública, con necesidad de mayor luminosidad, recibe los rayos del norte.

El hormigón
Luz natural que es controlada en el sector del estar por un plegado de hormigón visto con una altura mayor que en el resto de la vivienda, permitiendo además el ingreso de luz del este y la distinción de este espacio dentro de una planta libre sin divisiones.
Se buscó la continuidad en el uso de materiales, donde el hormigón visto es el protagonista. Su textura, aparentemente uniforme en su coloración, cambia dinámicamente su tonalidad con el paso de las horas según la luz del sol, las sombras y el correr del tiempo.

Se deseaba un revestimiento exterior original, pero con propiedades como fácil mantenimiento y larga vida útil. Se decidió reversionar el hormigón visto convencional, dándole un sentido de autenticidad llevando su plasticidad a la máxima expresión.
Una vivienda que va creando a cada paso sorpresas y descubrimientos espaciales, en horizontal y en vertical, invitándonos a un recorrido constante en múltiples direcciones, provocando a su vez el goce de la arquitectura y del espacio exterior.
En Abitacolo sabemos que el proyecto de una vivienda es sobre todo albergar las ilusiones y los sueños de una familia, por eso la etapa proyectual es fundamental para comprender cada detalle de la vida de sus integrantes y cómo este hogar deberá satisfacerlos.

Proyecto: arquitecta Agustina Niembro Buffolo
Cálculo: ingeniero Leonardo Zovich
Ejecución: ingeniero Raúl Rossi
Abitacolo es un estudio de Cipolletti (Yrigoyen 555). Lo conforman la arquitecta Agustina Niembro Buffolo y la diseñadora en el Hábitat, Camila Pomiés Franchi.
Con una trayectoria de 8 años, se especializa en el diseño integral, desde el proyecto de arquitectura a los detalles interiores. Se destaca en viviendas, reformas, ampliaciones y locales comerciales.
Los diseños pueden verse en Instagram y Facebook como abitacoloarquitectura.
Ambientes conectados, luminosidad y vistas al exterior desde todos los espacios fueron las premisas que guiaron a la arquitecta Agustina Niembro Buffolo, del estudio Abitacolo, en el proyecto de esta vivienda ubicada entre medianeras, en un barrio de la ciudad de Cipolletti.
Registrate gratis
Disfrutá de nuestros contenidos y entretenimiento
Suscribite desde $1500 ¿Ya estás suscripto? Ingresá ahora
Comentarios