Se viene el Centro Integral para mujeres y diversidades en Roca: qué es y para qué se crea
Un edificio de 770 metros cuadrados en un barrio de Roca servirá para prevenir, abordar y alojar transitoriamente a personas en situación de violencia. Será la primera institución creada en la ciudad con este fin específico y con fondos del Estado Nacional.
Con equipos interdisciplinarios integrados por trabajadores sociales, abogados y psicólogos, ese centro que tendrá sus bases en barrio Alfonsina Storni realizará tareas de acompañamiento, contención, asesoramiento jurídico y alojamiento transitorio en casos de situaciones de violencia de género.
Es el primer centro estatal específico para el abordaje de situaciones de violencia de género que se construirá en la ciudad de Roca.
La obra está a cargo de Nación y será financiada con recursos nacionales sobre la base de un proyecto que confeccionó el municipio teniendo en cuenta un prototipo.
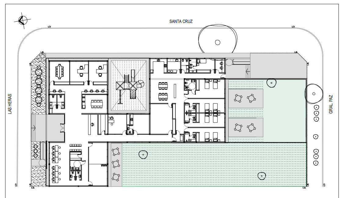
Este Centro Territorial Integral, enmarcado dentro del Plan Nacional de Acción Contra las Violencias por Motivos de Género 2020-2021 del Ministerio de las Mujeres, Géneros y Diversidad de Nación, se emplazará en el terreno ubicado en calle Santa Cruz entre Las Heras y General Paz, con una superficie total de 700 metros cuadrados y 70 metros semicubiertos.
Será un edificio abierto a la comunidad, que al mismo tiempo servirá de alojamiento transitorio para personas en situación de violencia por razones de género y su grupo familiar. Por eso, contendrá todas las áreas de atención al público y el sector privado.
La obra será licitada y ejecutada por el Gobierno Nacional hasta su finalización. RIO NEGRO consultó a autoridades nacionales por el inicio de la obra, pero por el momento no hay fechas exactas.
Al municipio le corresponde el control de esa obra y una vez concluida, la Secretaría de Desarrollo Social municipal será el área encargada de coordinar ese organismo.
Cabe recordar que la intendenta María Emilia Soria y la ministra de Mujeres y Géneros de Nación, Elizabeth Gómez Alcorta, habían firmado un convenio semanas atrás.
La misión del centro es abordar la prevención de las violencias y la promoción de derechos con anclaje territorial, la asistencia integral, la protección y el fortalecimiento de acceso a la justicia de mujeres y colectivos LGBTI+.
De fondo, se busca lograr el desarrollo de proyectos de vida autónomos y libres de violencias y eso no será sin la articulación y el trabajo en red con el municipio, la provincia y organizaciones sociales, según se fundamenta en el proyecto.

En el proyecto de obra se plantean tres áreas: una pública de acceso común, otra destinada al uso exclusivo del equipo interdisciplinario y una más privada para las personas alojadas.
Se prevé un área de ingreso y atención para derivar al área de escucha o profesional. Un sector reservado para consultas de atención especializada -salud reproductiva y no reproductiva, salud mental, etc.-, y un espacio para talleres o S.U.M.
¿Qué tareas tendrá?
Prevención de las violencias de género y promoción de la igualdad entre géneros
Acciones de sensibilización, capacitación sobre vínculos responsables y de promoción de nuevas masculinidades libres de violencia. Se articula con la Red de Promotoras Territoriales de Género con el objetivo de detectar señales tempranas de situaciones de violencia.
Asistencia integral de las personas en situación de violencia
Acciones para brindar herramientas para la toma de decisiones y articulación con otros programas y políticas para garantizar el acceso a recursos.
Protección de las personas en situación de violencia
Articulación con dispositivos territoriales de protección de personas en situación de violencia entre el equipo de este centro con áreas de género municipales y equipos de hogares y refugios, en el caso que no se cuente con el espacio.
Acompañamiento social integral
Fortalecimiento psicosocial hacia personas en situación de violencia de género; promoción de la participación en ámbitos colectivos de formación laboral, talleres socio productivos y acciones para el acceso y finalización de estudios.
Promoción de la salud comunitaria
Programas de Acceso a Derechos y de Facilitadores interculturales
Equipos de trabajo
Los equipos interdisciplinarios estarán integrados por trabajadores sociales, abogados y psicólogos especializados en la temática.
Los profesionales trabajarán en contacto con la población y cumplirán diversas tareas, entre ellas identificar las violencias y contextos de vulnerabilidad, brindar asesoramiento jurídico, realizar la evaluación de riesgos, facilitar acceso a programas sociales; hacer derivaciones a otros organismos del Estado como hospital, refugios y acompañar.
Según informaron desde el Municipio de Roca, está previsto que Nación contrate estos equipos que van a llevar adelante las tareas y actividades. Si posteriormente se requiriera la expansión del personal, se podría hacer desde el municipio.
“Acciones como esta nos encaminan hacia una sociedad más justa y con respeto hacia la diversidad”
María Emilia Soria, intendenta de Roca
Dato
- 23
- provincias del país más la Capital Federal deberán contar con centros como este, según los lineamientos generales del Ministerio de Mujeres, Géneros y el de Obras Públicas de Nación.
Con equipos interdisciplinarios integrados por trabajadores sociales, abogados y psicólogos, ese centro que tendrá sus bases en barrio Alfonsina Storni realizará tareas de acompañamiento, contención, asesoramiento jurídico y alojamiento transitorio en casos de situaciones de violencia de género.
Registrate gratis
Disfrutá de nuestros contenidos y entretenimiento
Suscribite desde $1500 ¿Ya estás suscripto? Ingresá ahora
Comentarios