Tres hermanas querían una casa para vacacionar en familia… y lograron esta obra cerca del mar
El arquitecto Luciano Luciano Kruk -quien según el Financial Times es el más recomendado en la Argentina- logró esta envidiable casa en la costa bonaerense. Fotos para entusiasmarse.
Mar Azul, localidad costera vecina a Mar de las Pampas y perteneciente al Partido de Villa Gesell presenta un loteo en cuadrícula delineado sobre una topografía de médanos. Su densa forestación de pinos -ya añosos- le confiere una atmósfera de apacible silencio y tranquilidad.

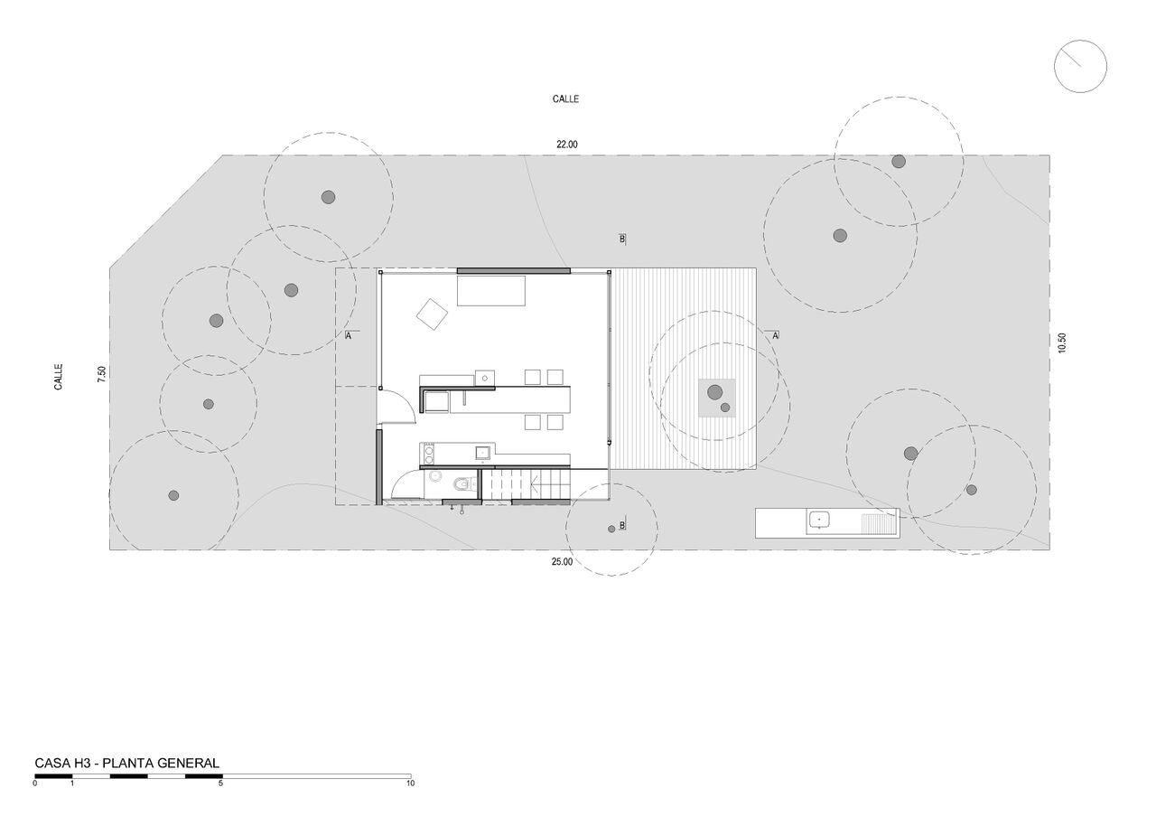
En un pequeño lote en esquina de aproximadamente 210 metros cuadrados ubicado a ocho cuadras respecto al mar se emplaza H3, una casa de pisada mínima, en la que se apuntó al máximo aprovechamiento de las dimensiones del terreno y de su entorno natural.
El cliente: tres hermanas y sus tres familias.

Si bien disponían de recursos económicos acotados, contaban con una valiosa capacidad para poder transmitir sus deseos de lo que esperaban fuese H3, su casa de veraneo compartida, su lugar de descanso en medio de la naturaleza.
Plantearon el requerimiento de un riguroso metraje. El programa debía contemplar un área social protagónica y otra más privada. Esta segunda debía constituirse por dos dormitorios: uno principal de dimensiones más generosas y uno secundario más pequeño (tipo camarote). Ambos compartirían el cuarto de baño. Deseaban que el dormitorio principal expandiera a un espacio exterior semicubierto. Así mismo, expresaron la intención de satisfacer el deseo de una salamandra ubicada en el centro del hogar.

La elección de la materialidad fue un acuerdo conjunto. La totalidad de la casa fue construida en hormigón visto, lo cual contribuyó a la economía de su mantenimiento. A fin de reducir al mínimo la incorporación de equipamiento, incluso el mobiliario fue concebido como parte de la caja de hormigón.
Para conformar los encofrados recurrimos al uso de tablas de madera de pino. Esta decisión se fundamentó en la pretensión de que tanto la terminación material de los paramentos como la de las losas conservaran la textura de la beta de la madera, en la búsqueda de un diálogo armonioso con la corteza de los pinos propios del lugar.

La casa se constituyo como un bloque compacto. La planta baja albergó a la cocina, al comedor y al estar en un único espacio integrado, al cual también se abre la escalera que conduce a la planta alta. Dada la escala de la casa, mediante vistas cruzadas y fugas visuales se intentó unificar y fluidificar el espacio interior. Se procuró no confinar los distintos usos a locales cerrados sino conectarlos entre sí con el propósito de generar la sensación de una mayor amplitud espacial. En la planta alta -tal como fue solicitado por programa- se situaron los dos dormitorios y el baño. La expansión semicubierta del dormitorio principal se proyectó compartida con el segundo dormitorio. Esta, a su vez, cubriría parcialmente el deck de expansión de la planta inferior.

La circulación y los locales de servicio se dispusieron sobre el lateral lindero al lote vecino y se procuraron los mayores acristalamientos hacia el contrafrente (el espacio más privado del lote) a fin de que la vivienda pudiera abrirse hacia el deck de expansión posterior, el cual conservó los árboles existentes.
Debido a la abundante sombra que brinda el profuso bosque no fue necesaria la incorporación de elementos arquitectónicos para disminuir la incidencia del sol en su interior. De hecho, la casa no solo se acristala para conectar con el espacio exterior y captar visuales, sino también para poder absorber la luz filtrada que logra atravesar la densidad del bosque.
Se recurre a aleros y a tabiques verticales protectores para el resguardo del agua y de las visuales provenientes desde las calles.
A modo de cobijo, el volumen del baño sirve de cubierta al acceso de la vivienda.

Mientras que los paramentos laterales se presentan mayormente oclusos, la planta alta presenta al frente el volumen ciego del cuarto de baño y el aventanamiento alto del dormitorio principal, debajo del cual se dispone -en el interior- un sitio de guardado. Hacia el contrafrente ambos dormitorios se aventanan en toda su altura conectándose abiertamente con el deck de expansión común.
A diferencia de la planta alta, la planta baja se abre cruzadamente desde el frente de acceso hacia su lado opuesto con aberturas de piso a techo. Nuestra intención fue la de concebir a esta planta como un espacio capaz de ser vivido como un ambiente interior contenido por la cubierta y por los cristales verticales, así como un espacio que al abrirlo pudiera convertirse en uno solo en continuidad con el exterior.

Así, el esquema de la casa se conforma a partir de una síntesis arquitectónica de las intenciones y los deseos de estas tres hermanas. La casa, en su mínima escala, se erige con voluntad de presencia, así como de integración respetuosa con su entorno, tanto natural como construido.

Ficha técnica
Ubicación: Mar Azul, Buenos Aires
Proyecto y Dirección: Arq. Luciano Kruk
Coordinación de dirección de obra : Pablo Magdalena
Colaboradores: Arq. Ekaterina Künzel – Arq. Josefina Perez Silva – Arq. Andrés Conde Blanco – Arq Leandro Rossi – Dan Saragusti – Giorgio Lorenzoli – Christian Studer – Isabelle Ducrest – Federico Eichenberg
Edición de memoria: Arq Mariana Piqué
Fotos: Daniela Mac Adden
Superficie del terreno: 258 m²
Superficie a construir: 75 m²

Edición: Horacio Lara, hlara@rionegro.com.ar















Mar Azul, localidad costera vecina a Mar de las Pampas y perteneciente al Partido de Villa Gesell presenta un loteo en cuadrícula delineado sobre una topografía de médanos. Su densa forestación de pinos -ya añosos- le confiere una atmósfera de apacible silencio y tranquilidad.
Registrate gratis
Disfrutá de nuestros contenidos y entretenimiento
Suscribite desde $1500 ¿Ya estás suscripto? Ingresá ahora
Comentarios